MEP & Coordination Drafting
Coordinated technical drawings that make construction seamless.
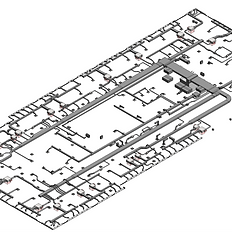
Service Description
TRUE Construction LLC produces accurate Revit and AutoCAD MEP drawings for electrical, plumbing, and HVAC coordination. We align trade drawings to reduce clashes and ensure constructability. Note: Prices reflect single-discipline layouts; multi-discipline packages available upon request.










Cancellation Policy
At TRUE Construction LLC, we value your time and ours. To ensure efficient scheduling and fairness to all clients, please review the following policy: Deposit & Payment: A minimum of 30% deposit is required to confirm booking. Remaining balance is due based on project milestones or upon completion. Cancellations: You may cancel your booking up to 48 hours before the start time with no penalty. Late Cancellations: If cancelled between 24 and 1 hour before the appointment, a 10% fee applies. No-Show / Same-Day Cancellations: Cancellations within 1 hour of the scheduled time will incur a 20% fee. Rescheduling: You may reschedule up to 24 hours in advance at no cost. Refunds: Deposits are non-refundable once materials are ordered or preparation work has started. Communication: For urgent changes, please contact us directly by phone or email listed in your confirmation message.
Contact Details
(737)362-9471
info@trueconstructiontx.com
712 Delta Crest, Maxwell, TX, USA